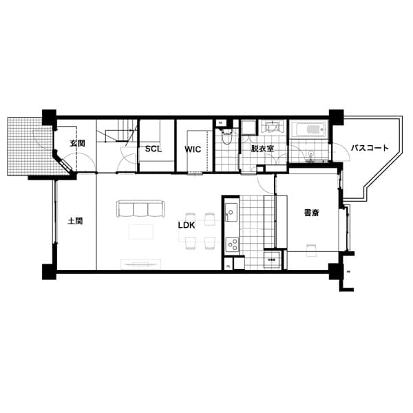
外と内をつなげた土間の効果
仕事と趣味が生きたSOHO住まい

経営者のためのテレワークができるマンションリノベ。玄関からすぐの土間には、アウトドア道具、サーフボードなどが置かれ、道具のメンテやテラスのような使い方もされている。そのままLDKにつながり、その奥に仕事部屋を兼ねた書斎が配置されている。



Before

After

設計/施工
松山 真介 Shinsuke Matsuyama/株式会社アポロ計画 リノベエステイト事業部
1968年 福岡県北九州市生まれ。
1993年 九州芸術工科大学(現・九州大学)卒業。
2000年 クリエイティブカンパニー「アポロ計画」設立。「モノづくり・ウワサづくり・売上づくりのデザイン」を理念と掲げ、様々なデザイン事業を展開する。
中古建築の再生に特化した「リノベエステイト」代表。一級建築士としての経験に基づき多数のリノベーションを手がける。社団法人リノベーション住宅推進協議会九州部会長として、既存住宅市場拡大のための様々な活動に携わり、講演活動も積極的に行う。
一級建築士(登録番号 第271276号)
宅地建物取引士(登録番号 (福岡)第042228号)
リノベーション住宅推進協議会 九州部会会長
サウナ・スパ プロフェッショナル(管理士)
社団法人 福岡県建築士会会員
