二人暮らしのラグジュアリー空間
天然木の名栗壁に灯した間接照明

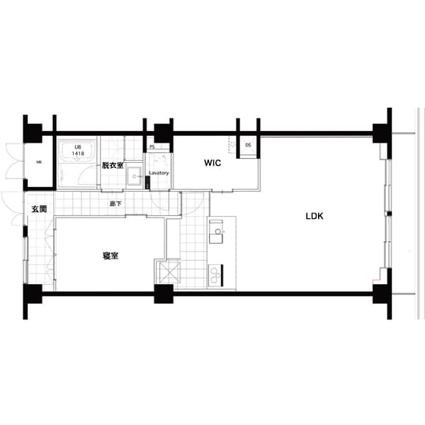
築40年以上のマンションリノベ。12畳の和室があったLDKは、TV壁面に天然木の名栗壁があしらわれ、間接照明があたったラグジュアリー空間へ変貌した。また、エントランスの外廊下側には土間スペースが配置され、プライバシーも向上した。

使い勝手の良いアイランドキッチンはkitchenhouse製。家具のように空間に溶け込みます。

寝室にはコーヒー豆のかすをリサイクルした壁用ボードを採用。

Before

After

設計/施工
松山 真介 Shinsuke Matsuyama/株式会社アポロ計画 リノベエステイト事業部
1968年 福岡県北九州市生まれ。
1993年 九州芸術工科大学(現・九州大学)卒業。
2000年 クリエイティブカンパニー「アポロ計画」設立。「モノづくり・ウワサづくり・売上づくりのデザイン」を理念と掲げ、様々なデザイン事業を展開する。
中古建築の再生に特化した「リノベエステイト」代表。一級建築士としての経験に基づき多数のリノベーションを手がける。社団法人リノベーション住宅推進協議会九州部会長として、既存住宅市場拡大のための様々な活動に携わり、講演活動も積極的に行う。
一級建築士(登録番号 第271276号)
宅地建物取引士(登録番号 (福岡)第042228号)
リノベーション住宅推進協議会 九州部会会長
サウナ・スパ プロフェッショナル(管理士)
社団法人 福岡県建築士会会員
