アアルトの照明BeehiveがLDKのアクセント
暮らしの質をアップデートした大人のマンションリノベ

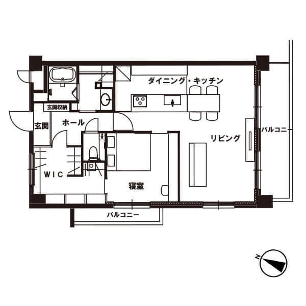
築26年の3LDKファミリー向けマンションを1LDK+WICへとフルリノベーション。アクティブシニア夫婦の二人暮らしに適した住まいのあり方を考えた。基本性能の向上を目指し、内窓の配置、断熱改修を行い、暮らしやすく低燃費なリノベーションとしている。
二人が寛ぐLDKは広がりのある大空間。アウトドア系の趣味のあるご夫婦ということもあり、寝室を囲った壁面はアガチスの無垢材を貼ることにより、LDKに小屋が存在するようなチャーミングなデザインとしている。

二人でも作業しやすいオーダーメードキッチンはkitchenhouse製。

寝室兼書斎。
8畳と広めに確保、書斎コーナーの内窓からはLDKの気配を感じることができる。書斎のカウンターのリビングに面する壁面は室内ガラス窓とし、木製ブラインドを配置、寝室と書斎空間とリビングを状況に応じて閉じたり開いたりする仕掛けを設けている。
ウィズコロナの社会では、テレワークをする機会も増える中で、住宅の中にワークスペースを確保することはこれからの住宅の課題である。



住み慣れた築26年のお住まいを今の暮らしに併せて大胆に間取り変更し、北欧家具が似合うゆとりと落ち着きの空間へ生まれ変わった。暮らしの質をアップデートした大人のためのマンションリノベとも言える。
設計/施工
松山 真介 Shinsuke Matsuyama/株式会社アポロ計画 リノベエステイト事業部
1968年 福岡県北九州市生まれ。
1993年 九州芸術工科大学(現・九州大学)卒業。
2000年 クリエイティブカンパニー「アポロ計画」設立。「モノづくり・ウワサづくり・売上づくりのデザイン」を理念と掲げ、様々なデザイン事業を展開する。
中古建築の再生に特化した「リノベエステイト」代表。一級建築士としての経験に基づき多数のリノベーションを手がける。社団法人リノベーション住宅推進協議会九州部会長として、既存住宅市場拡大のための様々な活動に携わり、講演活動も積極的に行う。
一級建築士(登録番号 第271276号)
宅地建物取引士(登録番号 (福岡)第042228号)
リノベーション住宅推進協議会 九州部会会長
サウナ・スパ プロフェッショナル(管理士)
社団法人 福岡県建築士会会員
